Aller à :

  • Aller à la recherche
  • Aller au menu principal
  • Aller au contenu
0
  • Accueil
  • Ventes
    • Nos biens
    • Alerte email
  • Locations
    • Nos biens
    • Alerte email
  • actualités
  • à la découverte de notre agence
    • Notre équipe
  • Recrutement
  • nos services
  • Contact
0
VotreRecherche
Dans un rayon de
Critères supplémentaires
  1. Accueil
  2. Commerces
  3. Location
  4. Charente maritime
  5. La rochelle
  6. Local d activite

Local-D-Activite à louer

3 annonce(s) trouvée(s) selon vos critères

Trier par

La Rochelle (17000)

Local d'activité / Atelier d'artisant neuf

Localisé dans une zone d'activité à La Rochelle - ZFU - Secteur Nord et proposant un accès aisé depuis et en direction du périphérique rochelais, à louer local d'activité neuf de 70 m² bénéficiant d'une hauteur sous faîtage de 6 mètres avec porte sectionnelle électrique de 3,25 m X 3,5 m H, surface de stockage en mezzanine + 50m², WC et bureaux, incluant une place de parking et accès sécurisé. Emplacement idéal pour artisan ou stockage. Il sera mis en place un bail 3/6/9 notarié ou dérogatoire de 35 mois ; loyer mensuel 900 € HT + TF/OM et charges locatives de copropriété, dépôt de garantie de 1800 €. Honoraires d'agence de 30 % TTC du loyer annuel + coût de la rédaction du bail et de l'état des lieux d'entrée, supporté par le preneur. Disponible à la signature. Photo non contractuelle.
Réf : 2829
900 € / mois HT - HC*
Voir le bien
La Rochelle (17000)

BATIMENT ACTIVITE 4 NIVEAUX 1 600 M²

La Rochelle, ZI Chef de Baie - La Pallice, à louer sur terrain clos de 2 000 m², un batiment d'activité de 1600 m² divisé en 4 plateaux de 470 m² environ. Au rez-de-chaussée, une partie atelier de 100 m² env bénéficiant d'une HSF variable entre 2,3 et 6,70 m ouverte sur porte sectionnelle électrique de 5 X 5,5 M Hauteur, un espace bureaux divisé en 2 de 45 m² et un accueil / showroom, double sanitaires PMR + kitchnette.Au 1er étage, un plateau agencé d'un espace réunion 28 m² + bureaux de 12 m² & bloc sanitaire PMR / douche et stockage. Au 2ème niveau, un plateau brut et un 3ème et dernier niveau sous pente (hauteur max 3,40 m), un logement de fonction avec terrasse et le restant pour du stockage. Les étages sont desservis par un escalier intérieur et possibilité d'installer un ascenseur ou monte charge. Le batiment est en construction charpente métallique, bardage double peau avec isolation supp, alimentation 380 V. En partie livrés brut de béton, fuides en attente. Hauteur entre chaque plateforme 2,5 m. Espace extérieur bétonné tout autour et sécurisé. Accès de part et d'autre sur le terrain. Divers ouvrants sont présents pouvant ainsi permettre la conception de bureaux ou de box de stockage. Un bail commercial 3/6/9 notarié sera mis en place moyennant un loyer mensuel 6800 € HT HC + TF/OM. DG à verser. Honoraires de location de 30 % TTC du loyer annuel + coût rédaction bail et EDL à charge du preneur.
Réf : 2569
6 800 € / mois HT - HC*
Voir le bien
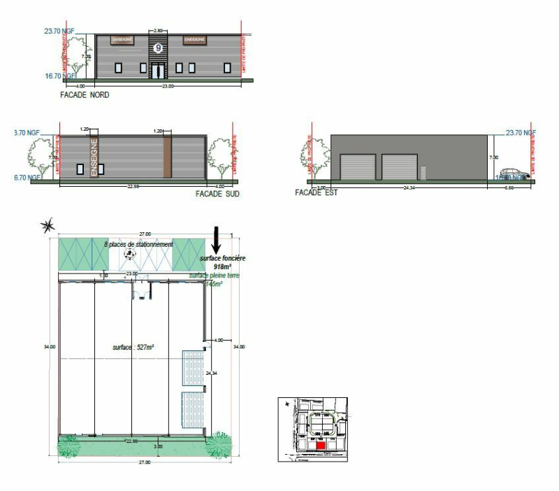
La Rochelle (17000)

Batiment artisanal 527 m² ZA

La Rochelle, au cœur de son agglomération dans un village artisanal en développement, à louer bâtiment tertiaire de 527 m² utile sur un terrain de 918 m², livré brut de béton, fluides en attente. Caractéristiques : huisserie aluminium - double vitrage à double faces feuilletées claires installées par le bailleur, construction neuve en charpente métallique, bardage double peau, toiture bac acier à pente douce. Le batiment bénéficie d'une belle hauteur sous faitage de 7 mètres et sera accessible par deux portes sectionnelles électrique 4,5 M H x 5,5 M L. Compteur triphasé tarif bleu 36 kWa - possibilité compteur jaune (156 kWa max). 8 stationnements privatifs. Livraison selon convenance. Bail 3/6/9 neuf ssp, loyer mensuel 4200 € HT + taxe foncière / ordures ménagères. Dépôt de garantie à verser de 2 termes. Honoraires de location de 30 % TTC du loyer annuel, frais EDL et bail à charge du preneur.
Réf : 2319/9
4 200 € / mois HT - HC*
Prix en baisse
Voir le bien

* Hors charges

Confiez-nous votre recherche

En savoir +
Contacter
l'agence

Remplissez ce formulaire, nous ferons de notre mieux pour vous répondre dans les meilleurs délais.

Cabinet CCE
05 46 29 02 56
E-mail contact@cabinetcce.fr

29 Avenue Jean Guiton 17000 La Rochelle

TRAD_MELTEM_voscoordonnees
TRAD_MELTEM_voredemande
Règlementation

* Champ obligatoire

Les informations recueillies sur ce formulaire sont enregistrées dans un fichier informatisé par La Boite Immo agissant comme Sous-traitant du traitement pour la gestion de la clientèle/prospects de l'Agence / du Réseau qui reste Responsable du Traitement de vos Données personnelles.
La base légale du traitement repose sur l’intérêt légitime de l'Agence / du Réseau.
Elles sont conservées jusqu'à demande de suppression et sont destinées à l'Agence / au Réseau.
Conformément à la loi « informatique et libertés », vous pouvez exercer votre droit d'accès aux données vous concernant et les faire rectifier en contactant l'Agence / le Réseau.
Si vous estimez, après avoir contacté l'Agence / le Réseau, que vos droits « Informatique et Libertés » ne sont pas respectés, vous pouvez adresser une réclamation à la CNIL.
Nous vous informons de l’existence de la liste d'opposition au démarchage téléphonique « Bloctel », sur laquelle vous pouvez vous inscrire ici : https://www.bloctel.gouv.fr 
Dans le cadre de la protection des Données personnelles, nous vous invitons à ne pas inscrire de Données sensibles dans le champ de saisie libre
Ce site est protégé par reCAPTCHA, les Politiques de Confidentialité et les Conditions d'Utilisation de Google s'appliquent.

Se connecter
Espace propriétaire
Adhérents

© 2025 | Tous droits réservés | Traduction powered by Google |

  • Nos honoraires
  • Plan du site
  • Mentions légales
  • Admin
  • Nos partenaires
  • Politique RGPD

Comme beaucoup, notre site utilise les cookies

On aimerait vous accompagner pendant votre visite. En poursuivant, vous acceptez l'utilisation des cookies par ce site, afin de vous proposer des contenus adaptés et réaliser des statistiques !

Paramétrer

Cookies fonctionnelsCes cookies sont indispensables à la navigation sur le site, pour vous garantir un fonctionnement optimal. Ils ne peuvent donc pas être désactivés.

Statistiques de visitesPour améliorer votre expérience, on a besoin de savoir ce qui vous intéresse !
Les données récoltées sont anonymisées.

?

Google Analytics

En savoir plus